Photographe à l'Inventaire
Dossier d’œuvre architecture IA00005956
| Réalisé par
- inventaire topographique
Manoir, Kerdanet (Poullan-sur-Mer)
Œuvre étudiée
Auteur
Dossier non géolocalisé
Localisation
-
Aire d'étude et canton
Douarnenez - Douarnenez
-
Commune
Poullan-sur-Mer
-
Lieu-dit
Kerdanet
-
Cadastre
1982
YB
50
-
Dénominationsmanoir
Ce dossier correspond à une transcription numérique d’éléments d’enquêtes antérieures à 2000. Tout enrichissement est le bienvenu.
-
Période(s)
- Principale : 4e quart 16e siècle
-
Dates
- 1583, porte la date
-
Murs
- granite
- schiste
- pierre de taille
-
Toitsardoise
-
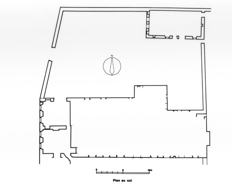
Plansplan régulier
-
Étages1 étage carré
-
Élévations extérieuresélévation à travées
-
Couvertures
- toit à longs pans
- croupe
- pignon découvert
- ruellée
-
Escaliers
- escalier dans-oeuvre : escalier en vis sans jour
-
Statut de la propriétépropriété privée
- (c) Inventaire général, ADAGP
- (c) Inventaire général, ADAGP
- (c) Inventaire général, ADAGP
- (c) Inventaire général, ADAGP
- (c) Inventaire général, ADAGP
- (c) Inventaire général, ADAGP
- (c) Inventaire général, ADAGP
- (c) Inventaire général, ADAGP
Date(s) d'enquête :
1980;
Date(s) de rédaction :
1984
Castel Yves-Pascal
Castel Yves-Pascal
Cliquez pour effectuer une recherche sur cette personne.
Articulation des dossiers
Photographe à l'Inventaire