Ce dossier correspond à une transcription numérique d’éléments d’enquêtes antérieures à 2000. Tout enrichissement est le bienvenu.
Dossier d’œuvre architecture IA00007448
| Réalisé par
Service régional de l'Inventaire de Bretagne
(Contributeur)
Service régional de l'Inventaire de Bretagne
Cliquez pour effectuer une recherche sur cette personne.
- pré-inventaire
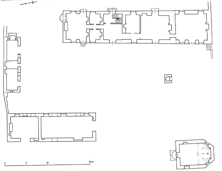
Manoir, la Fiollais (Saint-Senoux)
Œuvre étudiée
Auteur
-
Groussard Jean-ClaudeGroussard Jean-ClaudeCliquez pour effectuer une recherche sur cette personne.
Dossier non géolocalisé
Localisation
-
Aire d'étude et canton
Guichen - Guichen
-
Commune
Saint-Senoux
-
Lieu-dit
Fiollais (la)
-
Cadastre
1962
C1
102, 106, 108, 118
-
Dénominationsmanoir
-
Parties constituantes non étudiéeschapelle, communs, pigeonnier, puits
Chapelle construite en 1650 portant l'inscription peinte : L'AN DU SEIGNEUR 1650 JEAN DE LESCOET SEIGNEUR DE LA GUERRAUDE A DEDIE CETTE CHAPELLE A NOTRE-DAME DE LA FIOLAYE ; pigeonnier et communs 18e siècle ; logis reconstruit au 19e siècle.
-
Période(s)
- Principale : milieu 17e siècle
- Principale : 18e siècle
- Principale : 19e siècle
-
Dates
- 1650, porte la date
-
Murs
- grès
- schiste
- appareil mixte
- moellon sans chaîne en pierre de taille
-
Toitsardoise
-
Étages1 étage carré
-
Élévations extérieuresélévation à travées
-
Couvertures
- toit à longs pans
- croupe
- pignon couvert
-
Statut de la propriétépropriété privée
- (c) Inventaire général, ADAGP
- (c) Inventaire général, ADAGP
- (c) Inventaire général, ADAGP
- (c) Inventaire général, ADAGP
Date(s) d'enquête :
1967;
Date(s) de rédaction :
1967
Service régional de l'Inventaire de Bretagne
Service régional de l'Inventaire de Bretagne
Cliquez pour effectuer une recherche sur cette personne.
Articulation des dossiers
Photographe à l'Inventaire