Ce dossier correspond à une transcription numérique d’éléments d’enquêtes antérieures à 2000. Tout enrichissement est le bienvenu.
Dossier d’œuvre architecture IA00007460
| Réalisé par
Service régional de l'Inventaire de Bretagne
(Rédacteur)
Service régional de l'Inventaire de Bretagne
Cliquez pour effectuer une recherche sur cette personne.
- étude d'inventaire
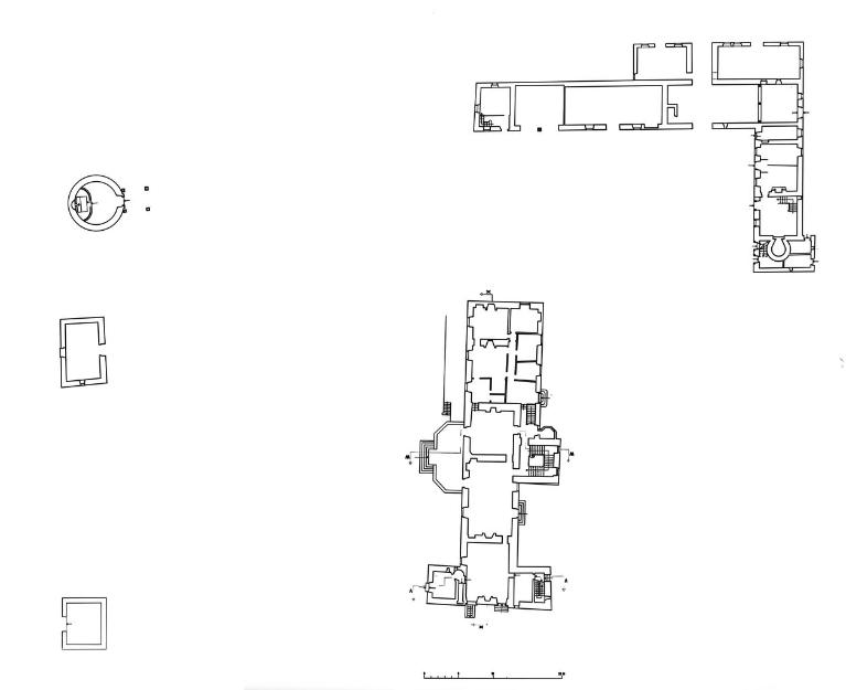
Château, la Robinais (Bain-de-Bretagne)
Œuvre étudiée
Auteur
Dossier non géolocalisé
Localisation
-
Aire d'étude et canton
Bain-de-Bretagne - Bain-de-Bretagne
-
Commune
Bain-de-Bretagne
-
Lieu-dit
Robinais (la)
-
Cadastre
1971
ZN
53
-
Dénominationschâteau
-
Parties constituantes non étudiéeschapelle, colombier, édifice agricole
Corps de logis, tour d'escalier construits à la fin du 16e ou au début du 17e siècle ; corps de logis ouest, pavillons et colombier construits vers 1660, le pavillon ouest porte la date 1661 ; remaniement au 19e siècle concernant le corps de logis principal et le changement d'affectation du colombier devenu chapelle.
-
Période(s)
- Principale : limite 16e siècle 17e siècle
- Principale : 3e quart 17e siècle
- Secondaire : 19e siècle
-
Dates
- 1661, porte la date
-
Murs
- schiste
- grès
- enduit
- appareil mixte
- moellon
- enduit
-
Toitsardoise
-
Étages1 étage carré
-
Élévations extérieuresélévation à travées
-
Couvertures
- toit à longs pans
- toit à longs pans brisés
- toit en pavillon
- pignon couvert
- croupe
- noue
-
Escaliers
- escalier hors-oeuvre : escalier tournant à retours avec jour
- escalier dans-oeuvre : escalier droit, escalier tournant à retours sans jour
-
Statut de la propriétépropriété d'une personne privée
-
Protectionsinscrit MH, 1992/12/23
-
Précisions sur la protection
Partiellement inscrit sur l'Inventaire Supplémentaire des Monuments Historiques par arrêté du 23 décembre 1992.
-
Référence MH
- (c) Inventaire général, ADAGP
- (c) Inventaire général, ADAGP
- (c) Inventaire général, ADAGP
- (c) Inventaire général, ADAGP
- (c) Inventaire général, ADAGP
- (c) Inventaire général, ADAGP
- (c) Inventaire général, ADAGP
- (c) Inventaire général, ADAGP
- (c) Inventaire général, ADAGP
- (c) Inventaire général, ADAGP
- (c) Inventaire général, ADAGP
- (c) Inventaire général, ADAGP
- (c) Inventaire général, ADAGP
- (c) Inventaire général, ADAGP
- (c) Inventaire général, ADAGP
- (c) Inventaire général, ADAGP
- (c) Inventaire général, ADAGP
- (c) Inventaire général, ADAGP
- (c) Inventaire général, ADAGP
- (c) Inventaire général, ADAGP
- (c) Inventaire général, ADAGP
- (c) Inventaire général, ADAGP
- (c) Inventaire général, ADAGP
- (c) Inventaire général, ADAGP
- (c) Inventaire général, ADAGP
- (c) Inventaire général, ADAGP
- (c) Inventaire général, ADAGP
- (c) Inventaire général, ADAGP
- (c) Inventaire général, ADAGP
- (c) Inventaire général, ADAGP
- (c) Inventaire général, ADAGP
- (c) Inventaire général, ADAGP
- (c) Inventaire général, ADAGP
- (c) Inventaire général, ADAGP
- (c) Inventaire général, ADAGP
- (c) Inventaire général, ADAGP
- (c) Inventaire général, ADAGP
- (c) Inventaire général, ADAGP
- (c) Inventaire général, ADAGP
- (c) Inventaire général, ADAGP
- (c) Inventaire général, ADAGP
- (c) Inventaire général, ADAGP
- (c) Inventaire général, ADAGP
- (c) Inventaire général, ADAGP
- (c) Inventaire général, ADAGP
- (c) Inventaire général, ADAGP
Date(s) d'enquête :
1967;
Date(s) de rédaction :
1967
Service régional de l'Inventaire de Bretagne
Service régional de l'Inventaire de Bretagne
Cliquez pour effectuer une recherche sur cette personne.
Articulation des dossiers
Photographe à l'Inventaire