Ce dossier correspond à une transcription numérique d’éléments d’enquêtes antérieures à 2000. Tout enrichissement est le bienvenu.
Dossier d’œuvre architecture IA00007506
| Réalisé par
Service régional de l'Inventaire de Bretagne
(Rédacteur)
Service régional de l'Inventaire de Bretagne
Cliquez pour effectuer une recherche sur cette personne.
- étude d'inventaire
Manoir, le Vautenet (Messac fusionnée en Guipry-Messac en 2016)
Œuvre étudiée
Auteur
Dossier non géolocalisé
Localisation
-
Aire d'étude et canton
Bain-de-Bretagne - Bain-de-Bretagne
-
Commune
Guipry-Messac
-
Lieu-dit
Messac,
Vautenet (le)
-
Cadastre
1963
E1
113
-
Précisions
commune fusionnée après inventaire Commune inventoriée sous le nom de Messac
-
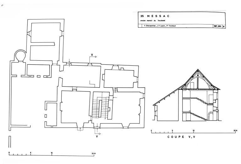
Dénominationsmanoir
-
Parties constituantes non étudiéeschapelle, édifice agricole, four à pain, jardin
Porte d'entrée 16e siècle, vestige de l'édifice antérieur ; reconstruction 1ère moitié 17e siècle ; remaniements vers 1932 (baies, aménagements intérieurs) ; chapelle construite en 1666.
-
Période(s)
- Principale : 1ère moitié 17e siècle
- Principale : 3e quart 17e siècle
- Secondaire : 16e siècle
-
Dates
- 1666, porte la date
-
Murs
- schiste
- grès
- calcaire
- appareil mixte
- moellon sans chaîne en pierre de taille
-
Toitsardoise
-
Étages1 étage carré
-
Élévations extérieuresélévation à travées
-
Couvertures
- toit à longs pans
- pignon couvert
- croupe
-
Escaliers
- escalier dans-oeuvre : escalier tournant à retours sans jour
-
Statut de la propriétépropriété privée
- (c) Inventaire général, ADAGP
- (c) Inventaire général, ADAGP
- (c) Inventaire général, ADAGP
- (c) Inventaire général, ADAGP
- (c) Inventaire général, ADAGP
- (c) Inventaire général, ADAGP
- (c) Inventaire général, ADAGP
- (c) Inventaire général, ADAGP
- (c) Inventaire général, ADAGP
- (c) Inventaire général, ADAGP
- (c) Inventaire général, ADAGP
- (c) Inventaire général, ADAGP
- (c) Inventaire général, ADAGP
- (c) Inventaire général, ADAGP
- (c) Inventaire général, ADAGP
- (c) Inventaire général, ADAGP
- (c) Inventaire général, ADAGP
- (c) Inventaire général, ADAGP
Date(s) d'enquête :
1967;
Date(s) de rédaction :
1967
Service régional de l'Inventaire de Bretagne
Service régional de l'Inventaire de Bretagne
Cliquez pour effectuer une recherche sur cette personne.
Articulation des dossiers
Photographe à l'Inventaire