Ce dossier correspond à une transcription numérique d’éléments d’enquêtes antérieures à 2000. Tout enrichissement est le bienvenu.
Dossier d’œuvre architecture IA00009031
| Réalisé par
- inventaire topographique
Ferme, le Pont Charrié (Augan)
Œuvre étudiée
Auteur
Dossier non géolocalisé
Localisation
-
Aire d'étude et canton
Guer - Guer
-
Commune
Augan
-
Lieu-dit
Pont Charrié (le)
-
Cadastre
1962
M5
518
;
1848
M5
675
-
Dénominationsferme
-
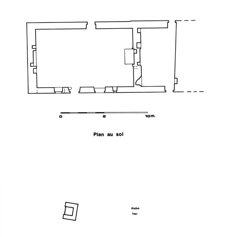
Parties constituantes non étudiéesétable, puits
Reconstruction probable dans le courant du 19e siècle sur un alignement préexistant, cadastre de 1812 et traces de reprise sur l'élévation antérieure du logis.
-
Période(s)
- Principale : 19e siècle
-
Murs
- schiste
- moellon sans chaîne en pierre de taille
-
Toitsardoise
-
Couvertures
- toit à longs pans
- pignon couvert
-
Typologiesalignement ; fonctions multiples superposées
-
État de conservationmenacé
-
Statut de la propriétépropriété privée
- (c) Inventaire général, ADAGP
- (c) Inventaire général, ADAGP
- (c) Inventaire général, ADAGP
- (c) Inventaire général, ADAGP
- (c) Inventaire général, ADAGP
- (c) Inventaire général, ADAGP
Date(s) d'enquête :
1977;
Date(s) de rédaction :
1977
Dossiers de synthèse