Ce dossier correspond à une transcription numérique d’éléments d’enquêtes antérieures à 2000. Tout enrichissement est le bienvenu
Dossier d’œuvre architecture IA00009865
| Réalisé par
- inventaire topographique
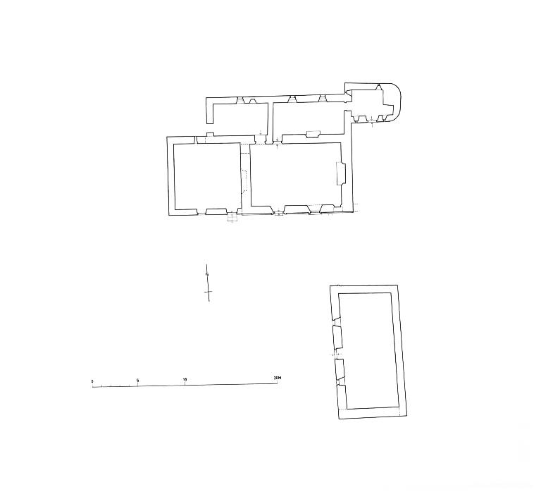
Manoir, Berrien (Kergrist)
Œuvre étudiée
Auteur
Dossier non géolocalisé
Localisation
-
Aire d'étude et canton
Cléguérec - Cléguérec
-
Commune
Kergrist
-
Lieu-dit
Berrien
-
Cadastre
1980
ZK
3
-
Dénominationsmanoir
-
Parties constituantes non étudiéespuits, remise
Vestiges d'un logis 2e moitié 16e siècle, corps de bâtiment au nord non identifié, nombreuses reprises du gros-oeuvre ; remise datée 1749 remploi.
-
Période(s)
- Principale : 2e moitié 16e siècle
- Principale : 19e siècle
- Secondaire : 2e quart 18e siècle
-
Dates
- 1749, porte la date
-
Murs
- granite
- schiste
- pierre de taille
- moellon
-
Toitsardoise
-
Étages1 étage carré
-
Élévations extérieuresélévation à travées
-
Couvertures
- toit à longs pans
- pignon découvert
-
État de conservationvestiges, mauvais état
-
Statut de la propriétépropriété privée
- (c) Inventaire général, ADAGP
- (c) Inventaire général, ADAGP
- (c) Inventaire général, ADAGP
- (c) Inventaire général, ADAGP
- (c) Inventaire général, ADAGP
- (c) Inventaire général, ADAGP
- (c) Inventaire général, ADAGP
Date(s) d'enquête :
1983;
Date(s) de rédaction :
1983
Articulation des dossiers
Photographe à l'Inventaire