Photographe à l'Inventaire
    Dossier d’œuvre architecture IA00009870
    | Réalisé par
    
      
  
  
    
  
  
      
    
  
  - inventaire topographique
 
    Manoir, le Liez (Kergrist)
  
  
    
      
        
          Œuvre étudiée
          
        
    
            
              Auteur
              
            
            
        
        
          
        
      Dossier non géolocalisé
        Localisation
      
      - 
      Aire d'étude et canton
      
        
  
          Cléguérec - Cléguérec
        
 - 
    Commune
    
      
  
        
          Kergrist
        
      
 - 
    Lieu-dit
    
      
  
        
          le Liez
        
      
 - 
    Cadastre
    
      
  
        
          1980
          ZS
          8
          
        
      
 
- 
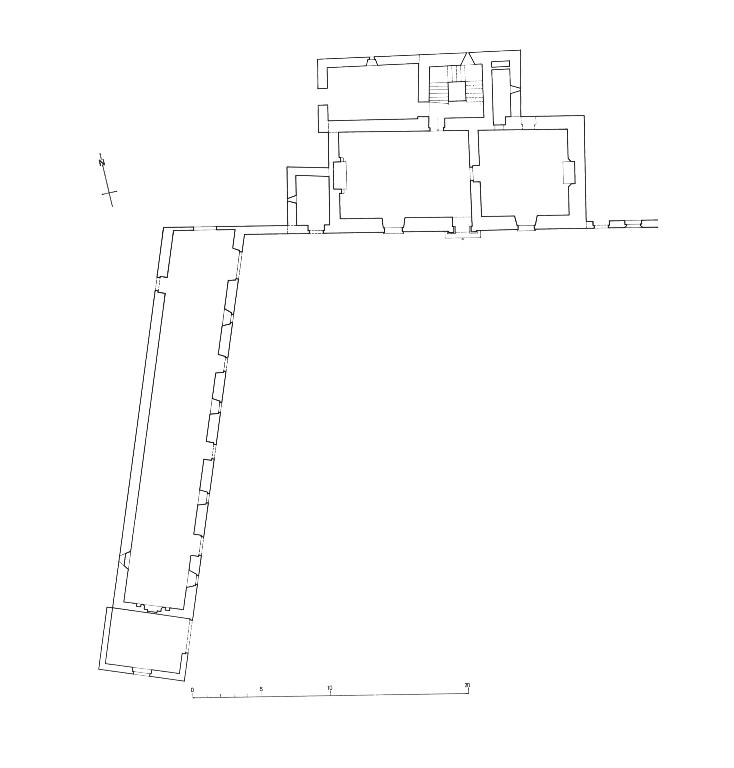
      Dénominationsmanoir
 - 
    Parties constituantes non étudiéescour, four à pain, pigeonnier
 
Ce dossier correspond à une transcription numérique d’éléments d’enquêtes antérieures à 2000. Tout enrichissement est le bienvenu
Logis et parties agricoles homogènes datés 1608.
- 
      Période(s)
- Principale : 1er quart 17e siècle
 
 - 
      Dates
- 1608, porte la date
 
 
- 
      Murs
- schiste
 - pierre de taille
 
 - 
      Toitsardoise
 - 
      Étages1 étage carré
 - 
      Élévations extérieuresélévation à travées
 - 
      Couvertures
- toit à longs pans
 
 - 
      Escaliers
- escalier dans-oeuvre : escalier tournant à retours sans jour
 
 - 
      Typologiestype ternaire variante locale ; logis à deux pièces par étage
 
- 
      Statut de la propriétépropriété privée
 
- (c) Inventaire général, ADAGP
 
- (c) Inventaire général, ADAGP
 
- (c) Inventaire général, ADAGP
 
- (c) Inventaire général, ADAGP
 
- (c) Inventaire général, ADAGP
 
- (c) Inventaire général, ADAGP
 
- (c) Inventaire général, ADAGP
 
- (c) Inventaire général, ADAGP
 
    Date(s) d'enquête :
      
      
      
      1983;
    
      Date(s) de rédaction :
      
        
          
        
        1983
      
    
    
  
  
        Articulation des dossiers
      
      
        
      
        
Photographe à l'Inventaire