Le toponyme Lamboëzer est peut-être une déformation de La Boissière, lui même dérivé du mot buis, arbuste couramment planté aux abords des villas gallo-romaines. Le manoir semble remonter au 17e siècle, remanié au 18e siècle et dans la seconde moitié du 20e siècle. Un bâtiment peut-être à usage d'orangerie date de 1742 (date portée). Les autres dépendances semblent également dater du 18e siècle comme le logis secondaire situé dans l'angle sud-est du verger. Dans la seconde moitié du 20e siècle, un nouveau logis est construit en alignement du manoir, au sud.
- inventaire topographique, Communauté de communes de Crozon
- (c) Collection particulière
Dossier non géolocalisé
-
Aire d'étude et canton
Parc Naturel Régional d'Armorique - Crozon
-
Commune
Crozon
-
Lieu-dit
Lamboëzer
-
Cadastre
HN 136, 12, 137
-
Dénominationsmanoir
-
Parties constituantes non étudiéescommuns, cour, verger, enclos, logement
-
Période(s)
- Principale : 17e siècle
- Secondaire : 2e quart 18e siècle
- Secondaire : 2e moitié 20e siècle
-
Dates
- 1742, porte la date
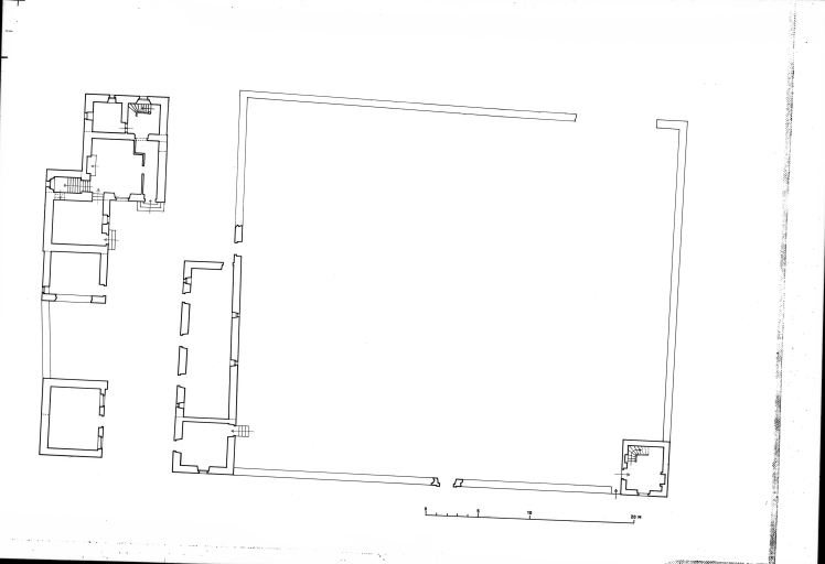
Ensemble à cour semi fermée avec verger attenant enclos de murs. Le logis du manoir comprend une salle avec cheminée et une cuisine (?) opposées perpendiculairement par un angle, reliées par la cage d'escalier située dans l'angle extérieur, couverte en appentis. Une noue relie le toit en pavillon de la cuisine au toit à longs pans de la salle. Deux pièces annexes ont été construites contre le mur nord de la salle, abritées par le prolongement du versant postérieur du toit afin de loger un escalier secondaire et un cellier (?). En face, la longue dépendance et l'orangerie (?) couverte en pavillon sont adossées au mur de clôture du verger. Un logement secondaire de plan massé, à étage, également couvert en pavillon, est construit dans l'angle sud-est de l'enclos.
-
Murs
- grès
- moellon
-
Toitsardoise
-
Étages1 étage carré
-
Couvertures
- toit à longs pans
- toit en pavillon
- appentis
- pignon couvert
- noue
-
Escaliers
- escalier de distribution extérieur : escalier droit
- escalier dans-oeuvre : escalier tournant
-
Statut de la propriétépropriété privée
- (c) Archives départementales du Finistère
- (c) Inventaire général, ADAGP
- (c) Inventaire général, ADAGP
- (c) Région Bretagne
- (c) Région Bretagne
- (c) Région Bretagne
- (c) Collection particulière
- (c) Collection particulière
- (c) Collection particulière
- (c) Collection particulière
- (c) Collection particulière
- (c) Collection particulière
Documents d'archives
-
Archives départementales du Finistère : Série 3 P 45
Archives départementales du Finistère. Série 3 P 45. Tableau d´assemblage et cadastre parcellaire, 1830-1831.
Chargée d'études Inventaire
Chargée d'études Inventaire