Situé au nord de la commune, le complexe sportif de la Touche est construit à l'issue d'un concours tenu en 2004 et remporté par l'architecte nantais D. Le Borgne. Le permis de construire est délivré le 25 février 2005, le chantier s'ouvre le 24 novembre et s'achève le 15 mars 2007. Quelques années plus tard, on lui adjoint un espace couvert polyvalent, conçu par V. Le Faucheur et inauguré le 23 avril 2016.
Dossier d’œuvre architecture IA35132617
| Réalisé par
;
- enquête thématique régionale, patrimoine des sports
Complexe sportif de la Touche, rue de la Côte d'Emeraude (Betton)
Œuvre étudiée
Auteur
Dossier non géolocalisé
Localisation
-
Aire d'étude et canton
Bretagne
-
Commune
Betton
-
Adresse
rue de la Côte d'Emeraude
-
Dénominationscomplexe sportif
-
Période(s)
- Principale : 1er quart 21e siècle , daté par source
-
Dates
- 2007, daté par source
- 2016, daté par source
-
Auteur(s)
-
Auteur :
Le Borgne Didierarchitecte attribution par sourceLe Borgne DidierCliquez pour effectuer une recherche sur cette personne.
-
Auteur :
Le Faucheur Vincentarchitecte attribution par sourceLe Faucheur VincentCliquez pour effectuer une recherche sur cette personne.
Architecte DPLG, 6 boulevard de Cleunay, Rennes
-
Auteur :
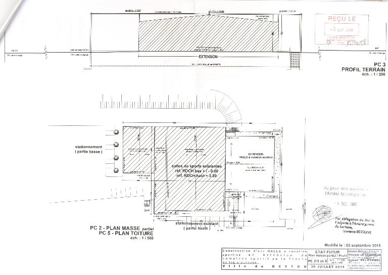
Couvrant une surface hors-oeuvre de 2 516 m², le complexe sportif construit en 2007 se compose de deux salles de sport de 44 m x 22 m et 18 m x 36 m, dont une avec gradins, d'un espace débit de boisson avec réserve, de bureaux, de vestiaires, de sanitaires et de locaux de rangement de matériel de sport, le tout sur deux niveaux, rez-de-chaussée haut et bas. Construction en béton peint, bardage métallique, panneaux translucides. Etanchéité sur bac acier. L'espace couvert polyvalent ajouté en 2016 au sud est une simple halle en charpente et bardage métallique.
-
Murs
- béton enduit
-
Toitsacier en couverture
-
Plansplan rectangulaire régulier
-
Couvrements
- charpente en bois apparente
-
Statut de la propriétépropriété de la commune
- (c) Ville de Betton
- (c) Ville de Betton
- (c) Ville de Betton
- (c) Ville de Betton
- (c) Ville de Betton
- (c) Région Bretagne
- (c) Région Bretagne
- (c) Région Bretagne
- (c) Région Bretagne
Date(s) d'enquête :
2017;
Date(s) de rédaction :
2017
Dossiers de synthèse
Architecte, 44 rue de Gigant, Nantes, puis 94 rue du Leinster, La Chapelle-sur-Erdre