Corps de garde crénelé n° 3 et batterie (Cr 328) puis Centre de voile de Roscanvel,
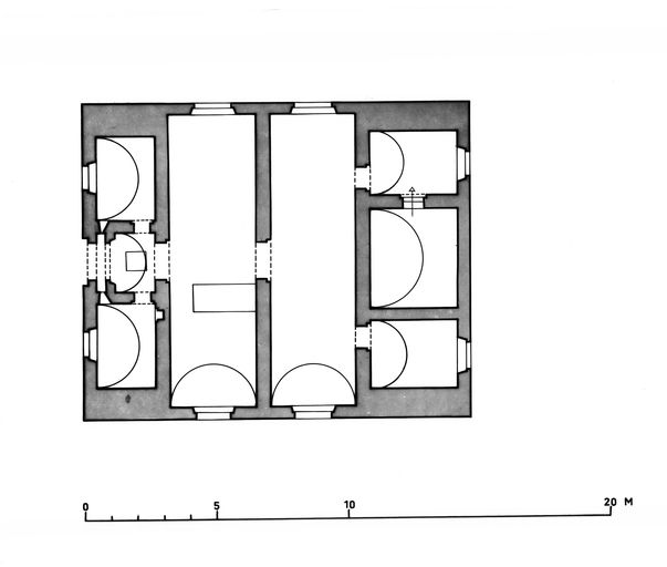
Plan du corps de garde crénélé n° 3 du bourg de RoscanvelImmatriculation
        IVR53_19872900101PA
      Auteur du document reproduit
        
            Auteur de l'illustration
            
          
          Copyright
        
      Diffusion
        reproduction soumise à autorisation du titulaire des droits d'exploitation
      Type
        phototype argentique
      
      Besoin d'informations sur cette illustration ?
    
    Nous contacter 
  
        Informations techniques
      
      - 
              Technique de relevé- relevé manuel
 
 
         
      