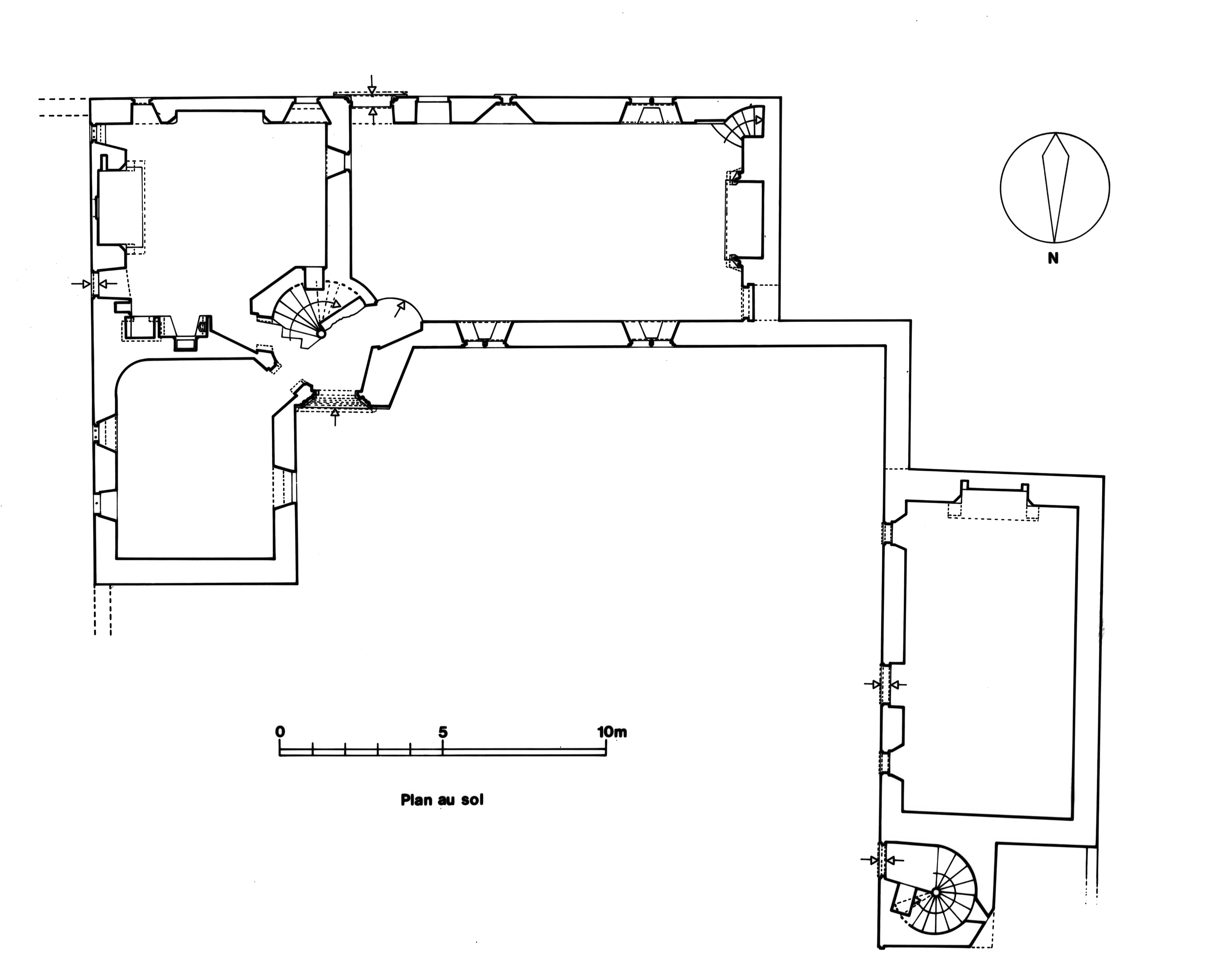
Manoir de Kerlan (Sibiril),
Plan archéologique au sol : logis et logement ouestImmatriculation
IVR53_19882900219P
Auteur de l'illustration
Copyright
Diffusion
reproduction soumise à autorisation du titulaire des droits d'exploitation
Type
phototype argentique
Besoin d'informations sur cette illustration ?
Nous contacter