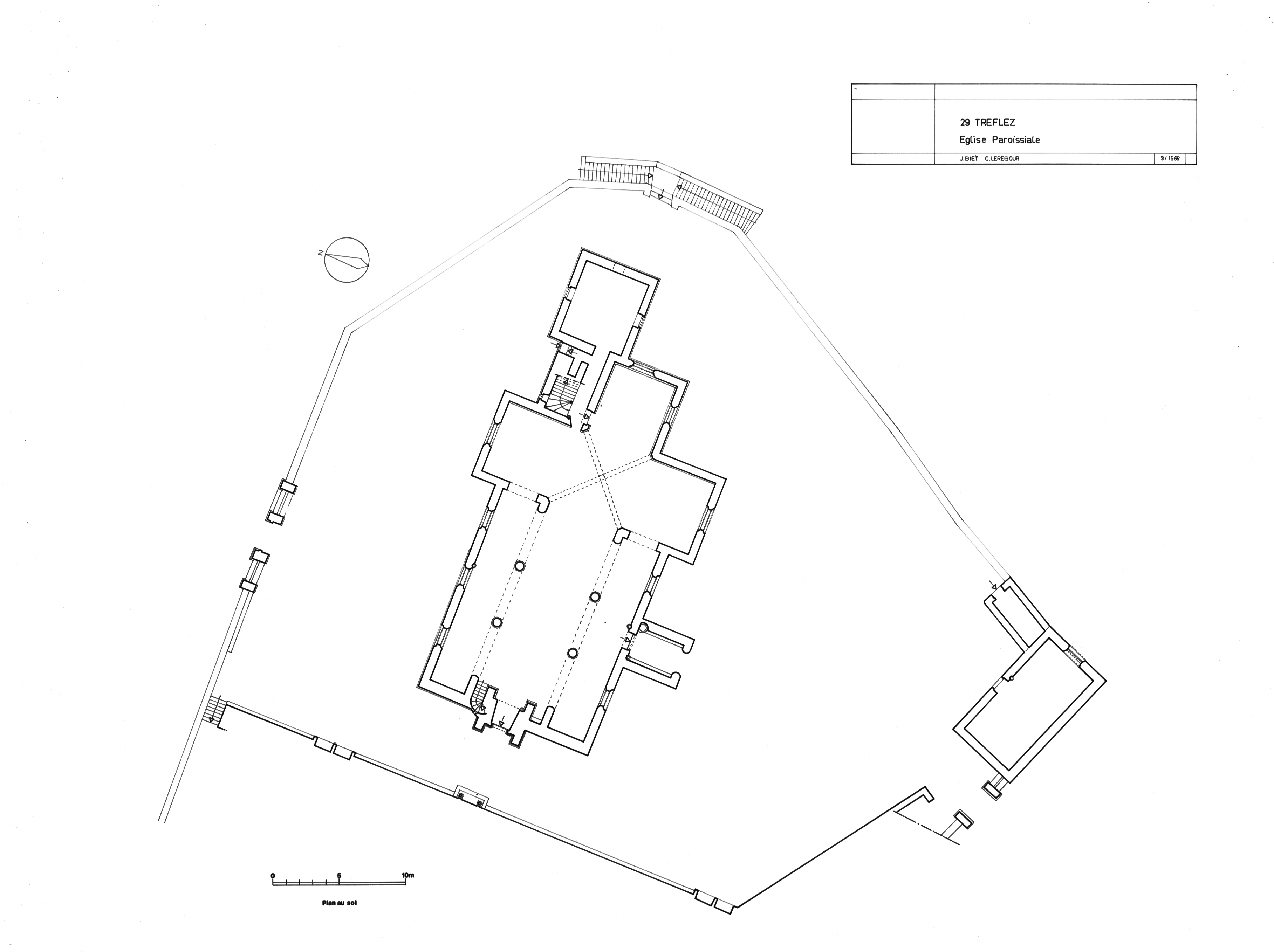
Église paroissiale Sainte-Édiltrude, Santes-Ventroc (Tréflez),
Plan au sol (état en 1989)Immatriculation
IVR53_19892900084P
Auteur du document reproduit
- ;
-
Lerebour CorinneLerebour CorinneCliquez pour effectuer une recherche sur cette personne.
Auteur de l'illustration
Diffusion
reproduction soumise à autorisation du titulaire des droits d'exploitation
Type
phototype argentique
Besoin d'informations sur cette illustration ?
Nous contacter