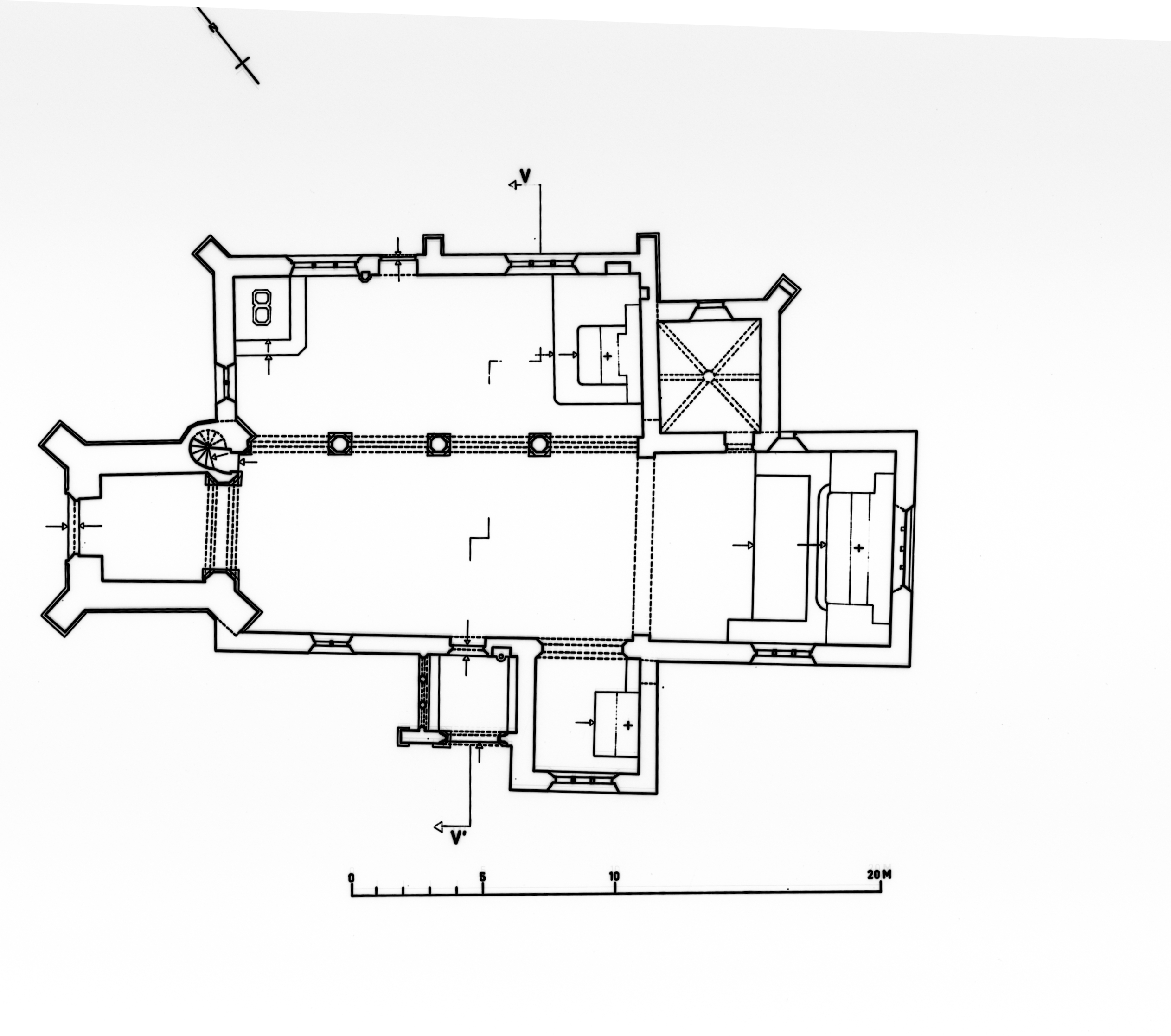
Église paroissiale Saint-Martin (Javené),
Plan au sol, 1968.Immatriculation
IVR53_19903500076P
Auteur du document reproduit
- ;
Auteur de l'illustration
Copyright
Diffusion
reproduction soumise à autorisation du titulaire des droits d'exploitation
Type
phototype argentique
Besoin d'informations sur cette illustration ?
Nous contacter
Photographe à l'Inventaire