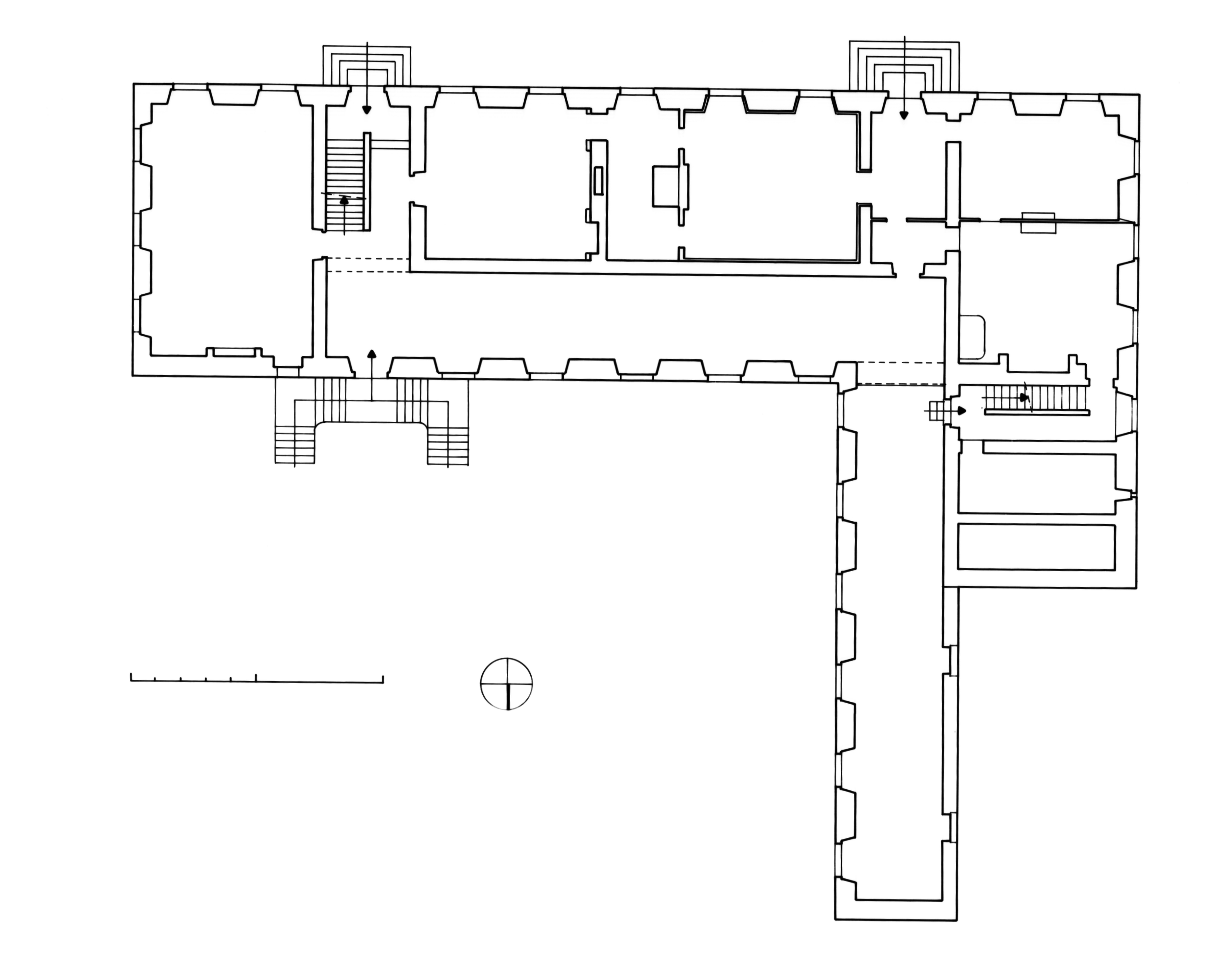
Abbaye de Génovéfains, dite Saint-Jean des Prés (Guillac),
Plan au sol du rez-de-chaussée, d'après relevé Hervé Guyot 1987Immatriculation
IVR53_19935600477P
Auteur du document reproduit
Auteur de l'illustration
Copyright
Diffusion
reproduction soumise à autorisation du titulaire des droits d'exploitation
Type
phototype argentique
Besoin d'informations sur cette illustration ?
Nous contacter
Informations techniques
-
Technique de relevé
- relevé manuel
Architecte.