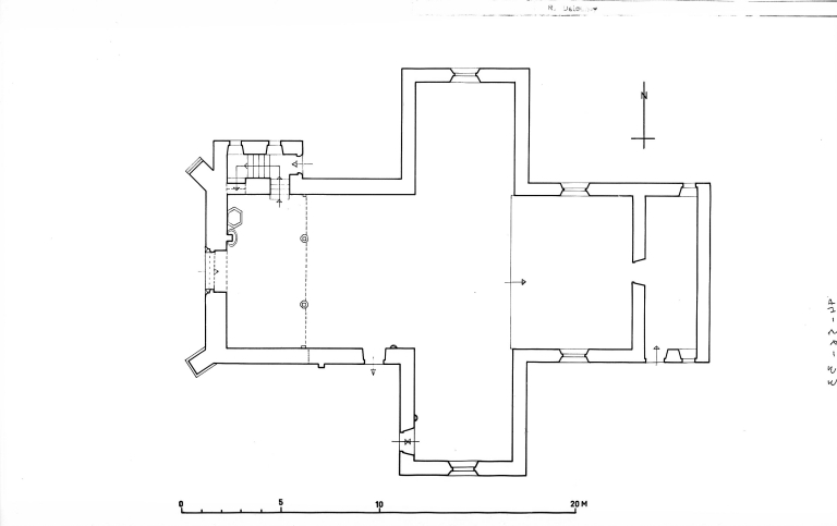
Chapelle Sainte-Hélène, Sainte-Hélène (Bubry),
Plan au solImmatriculation
IVR53_19945600033P
Auteur de l'illustration
Auteur de l'illustration
(reproduction)
Copyright
Diffusion
reproduction soumise à autorisation du titulaire des droits d'exploitation
Type
phototype argentique
Besoin d'informations sur cette illustration ?
Nous contacter
Informations techniques
-
Technique de relevé
- relevé manuel
Photographe à l'Inventaire