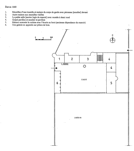
Manoir, Pencleu (Clohars-Carnoët),
Etat de l'ensemble d'après un procès-verbal de 1660 (conception C. Douard, dessin Y. Carpentier)Immatriculation
IVR53_20022901234NUC
Auteur de l'illustration
Copyright
Diffusion
reproduction soumise à autorisation du titulaire des droits d'exploitation
Type
phototype numérique
Besoin d'informations sur cette illustration ?
Nous contacter
Informations techniques
-
Technique de relevé
- relevé manuel
dessinateur