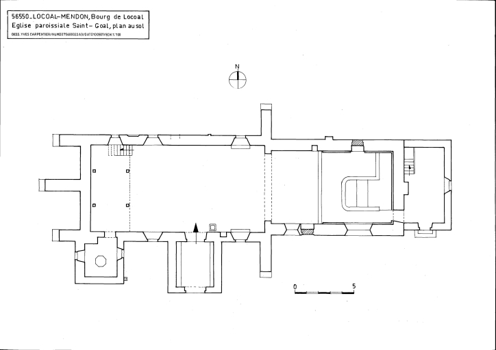
Eglise paroissiale Saint-Goal, Locoal (Locoal-Mendon),
Plan au solImmatriculation
IVR53_20075605089NUC
Auteur de l'illustration
Copyright
Diffusion
reproduction soumise à autorisation du titulaire des droits d'exploitation
Type
phototype numérique
Besoin d'informations sur cette illustration ?
Nous contacter
Informations techniques
-
Supportpapier
-
Technique de relevé
- relevé manuel
dessinateur