Église paroissiale Saint-Sylvestre (Plouzélambre),
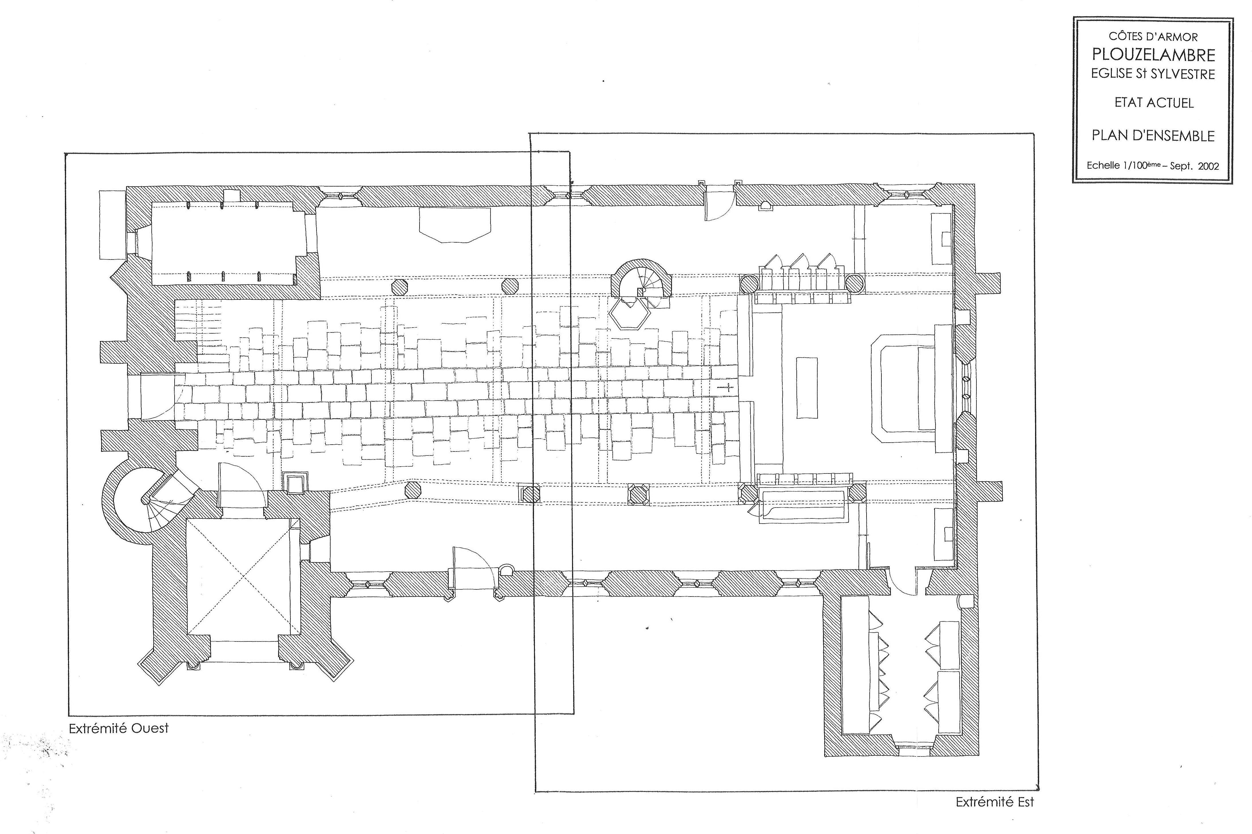
Plouzélambre, le bourg, enclos paroissial : plan de l'église Saint-Sylvestre (extrait de l'étude préalable à la restauration de l'église par Marie-Suzanne DE PONTHAUD, architecte en chef des monuments historiques, septembre 2002)Immatriculation
IVR53_20152206533NUCA
Auteur de l'illustration
(reproduction)
-
Jenouvrier AlainJenouvrier AlainCliquez pour effectuer une recherche sur cette personne.
Copyright
Diffusion
reproduction soumise à autorisation du titulaire des droits d'exploitation
Type
phototype numérique
Besoin d'informations sur cette illustration ?
Nous contacter