Palais épiscopal puis hôtel de ville actuellement mairie et bibliothèque, boulevard Anatole Le Braz (Tréguier),
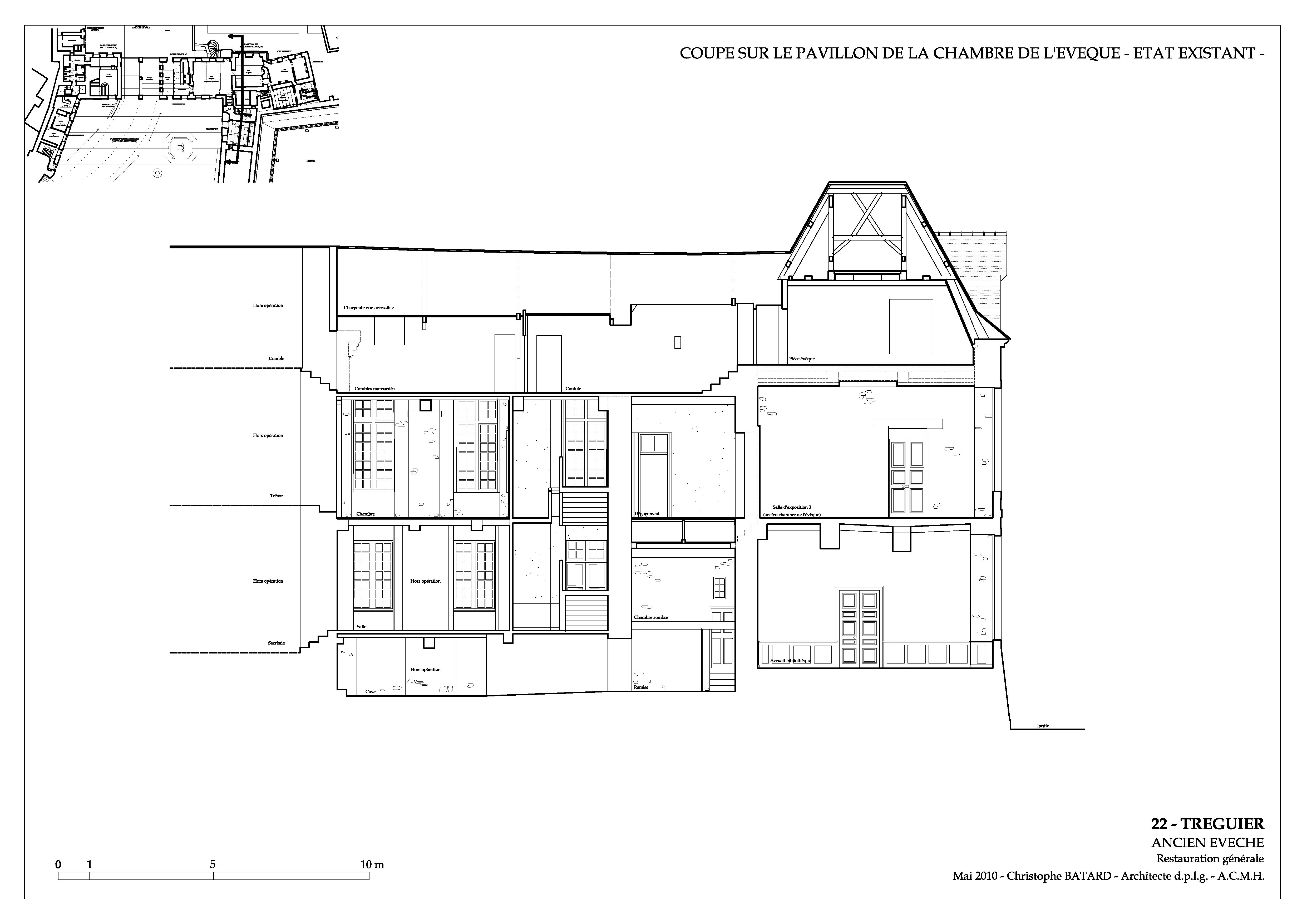
Tréguier, boulevard Anatole Le Braz : palais épiscopal aujourd'hui mairie et bibliothèque, coupe sur le pavillon est et l'aile sud-est, état actuel, 1/100ème (extrait de l'étude préalable à la restauration générale de l'ancien évêché de Tréguier sous la direction de Christophe Batard, architecte en chef des monuments historiques, 2010)Immatriculation
IVR53_20172205527NUD
Auteur de l'illustration
-
Batard ChristopheBatard ChristopheCliquez pour effectuer une recherche sur cette personne.
Copyright
- (c) Ministère de la culture et de la communication
Diffusion
reproduction soumise à autorisation du titulaire des droits d'exploitation
Type
dessin numérique
Besoin d'informations sur cette illustration ?
Nous contacter
-
Archives communales de Tréguier
BATARD, Christophe (architecte en chef des monuments historiques). Étude préalable à la restauration générale de l'ancien évêché de Tréguier. Rapport de présentation. Juin 2010, 86 p. Étude historique et documentaire réalisée dans ce cadre par Gérard Danet, historien du patrimoine.
Architecte diplômé par Le gouvernement (DLPG), architecte en chef des monuments historiques (ACMH).