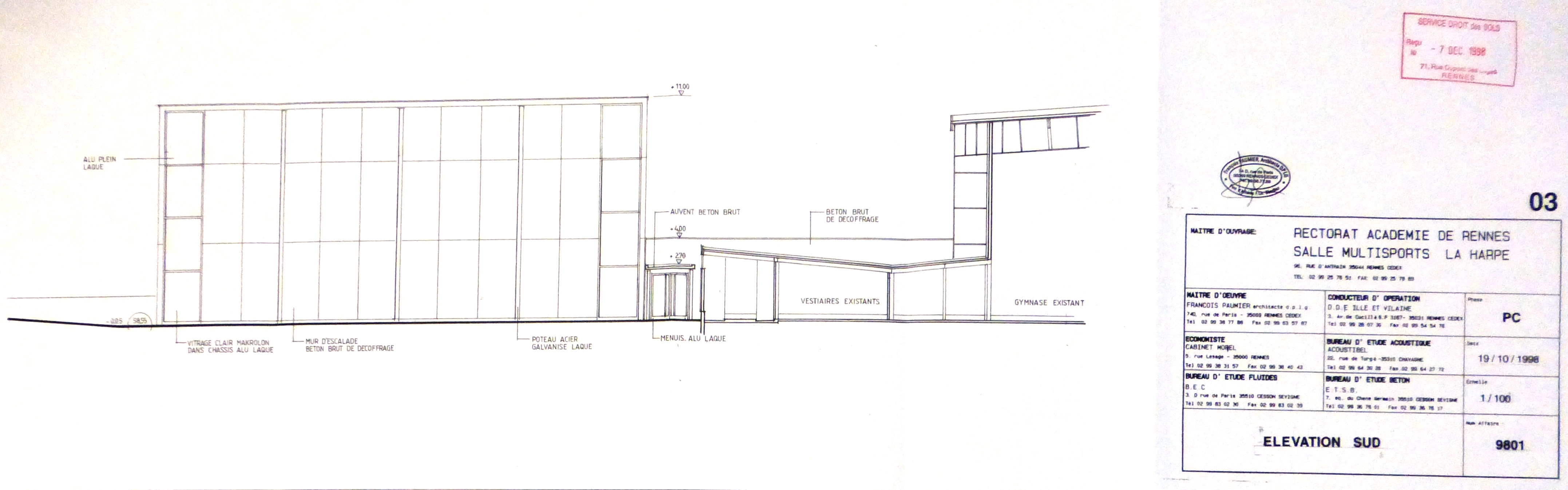
Salle multisports de la Harpe, avenue Charles Tillon (Rennes),

Elévation sud (1999)
Immatriculation
IVR53_20173505611NUCA
Copyright
  • (c) Archives municipales de Rennes
Année de prise de vue
2017
Diffusion
reproduction soumise à autorisation du titulaire des droits d'exploitation
Type
phototype numérique

Sujets

gymnase
Besoin d'informations sur cette illustration ?
Nous contacter
Références des documents reproduits
  • AC Rennes : 1258 W 2. Coupe longitudinale. F. Paumier, 1999.

    Archives municipales de Rennes : 1258 W 2