Ensemble fortifié codé "Po46" de l'Ile à Bois (Lézardrieux),
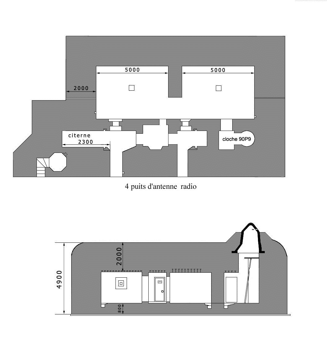
Abri type 502, pour deux groupes de combat. Il était utilisé comme poste de commandement de compagnie (dessin : Alain Bohée)Immatriculation
        IVR53_20182207574NUCA
      
            Auteur de l'illustration
            
          
          Copyright
        - (c) Association Océanide
Diffusion
        reproduction soumise à autorisation du titulaire des droits d'exploitation
      Type
        phototype numérique
      
      Besoin d'informations sur cette illustration ?
    
    Nous contacter 
   
         
       
        
Historien, membre de l'association Océanide.