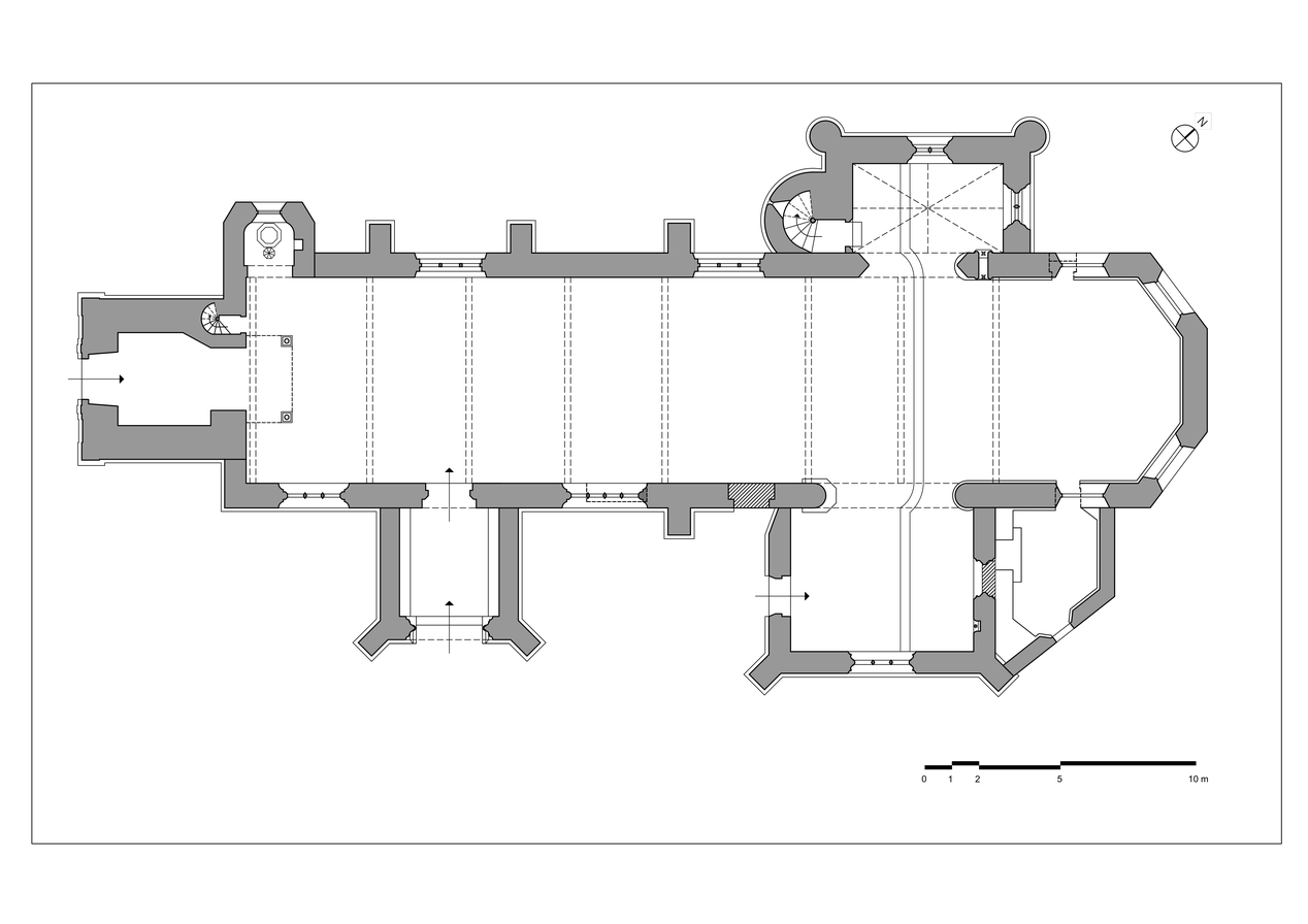
Eglise paroissiale Notre-Dame (Le Quillio),
Plan au solImmatriculation
IVR53_20202200445NUD
Auteur de l'illustration
Copyright
Diffusion
reproduction soumise à autorisation du titulaire des droits d'exploitation
Type
dessin numérique
Besoin d'informations sur cette illustration ?
Nous contacter
Dessinatrice à l'Inventaire