Résultats de la recherche : "Le Rétif Cécile" 50 résultats
Notice d'illustration
IVR53_20123517769A3B
|
Hôtel particulier, 11 rue Notre-Dame (Vitré)
Organisation des distributions du corps de logis et de l'aile sud
Notice d'illustration
IVR53_20123517849A3B
|
Maison, 15 rue Notre-Dame (Vitré)
Schéma de toiture (incertitude quant à la pente de toit centrale)
Notice d'illustration
IVR53_20123517780A3B
|
Hôtel particulier, 11 rue Notre-Dame (Vitré)
Façade ouest de l'aile sud
Notice d'illustration
IVR53_20123517459A3B
|
Hôtel particulier, 5 place du Marchix (Vitré)
Organisation des distributions générale
Notice d'illustration
IVR53_20123517848A3B
|
Maison, 15 rue Notre-Dame (Vitré)
Organisation des distributions
Notice d'illustration
IVR53_20123517287A3B
|
Hôtel particulier, 5 place du Marchix (Vitré)
Organisation des distributions : premier étage (partie nord du corps de logis principal : demi-étage)
Notice d'illustration
IVR53_20123517319A3B
|
Maison, 3 place du Marchix (Vitré)
Organisation des distributions
Notice d'illustration
IVR53_20123517456A3B
|
Maison, 5 bis place du Marchix (Vitré)
Organisation des distributions
Notice d'illustration
IVR53_20123517285A3B
|
Hôtel particulier, 5 place du Marchix (Vitré)
Organisation des distributions : rez-de-chaussée ( partie nord-est du corps de logis principal : demi-étage)
Notice d'illustration
IVR53_20123517289A3B
|
Hôtel particulier, 5 place du Marchix (Vitré)
Organisation des distributions : combles
Notice d'illustration
IVR53_20123517781A3B
|
Hôtel particulier, 11 rue Notre-Dame (Vitré)
Façade est du corps de logis (partie ouest)
Notice d'illustration
IVR53_20123517251A3B
|
Maison, 13 place du Marchix (Vitré)
Organisation des distributions
Notice d'illustration
IVR53_20123517673A3B
|
Maison, 9 place du Marchix (Vitré)
Organisation des distributions de la dépendance sud
Notice d'illustration
IVR53_20123517238A3B
|
Hôtel particulier, 5 place du Marchix (Vitré)
schéma de toiture
Notice d'illustration
IVR53_20123517286A3B
|
Hôtel particulier, 5 place du Marchix (Vitré)
Organisation des distributions : rez-de-chaussée (parties sud et nord-ouest du corps de logis)
Notice d'illustration
IVR53_20123517927A3B
|
Maison, 8 rue Notre-Dame et 6 place du Marchix (Vitré)
Schéma de toiture
Notice d'illustration
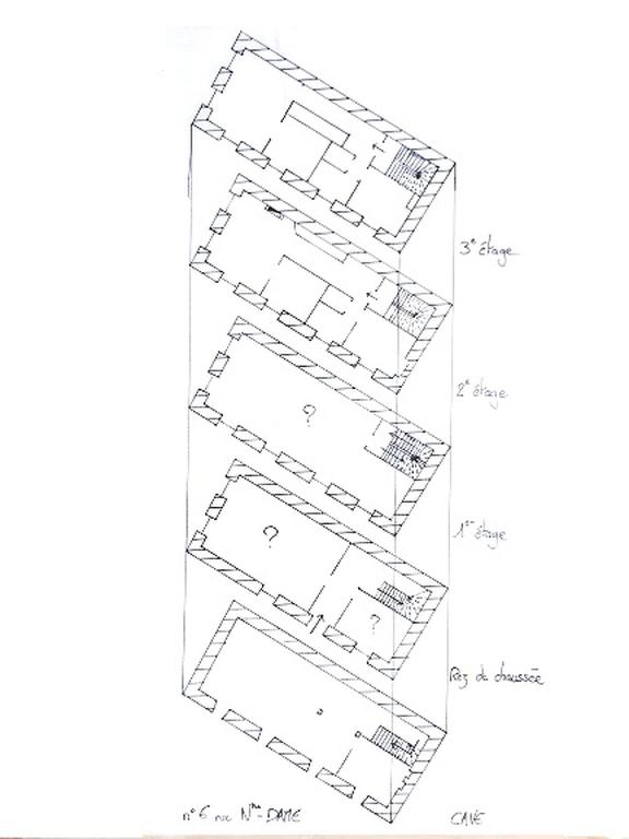
IVR53_20123517764A3B
|
Maison, 6 rue Notre-Dame (Vitré)
Organisation des distributions